The slab is supported on beams of size 225 x 500 mm spaced at 40 m centers.

Ground floor slab design example.
434 bending strength calculations for a piled floor edge panel.
436 serviceability checks on piled floor design solution.
The slab is required to carry an imposed load of 25 knm2.
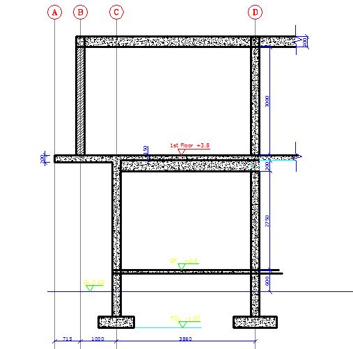
The superstructure is a two bay portal frame on separate foundations and the soil is a medium dense sand which the site investigation has indicated to be consistent.
Type d slabs contain.
435 bending strength calculations for a piled floor corner.
Design of slab examples and tutorials by sharifah maszura syed mohsin example 2.
Ringo and robert b.
The slab thickness is to be designed as 150 mm.
433 bending strength calculations for a piled floor interior.
It was actually the widespread use of the post tensioned slab on ground which induced this interest in design procedure and in many studies of reported slab failures.
Choosing design methods for industrial floor slabs by boyd c.
432 piled floor preliminary design.
Each method has particular loading conditions and slab types for which its most effective.
Design of slabs on ground 360r 3 a52example selecting the optimum amount of reinforce ment to maximize the compressive stress in the concrete where the slab thickness the joint spacing and prism expansion are known appendix 6design examples for steel frc slabs on ground using yield line method p.
Thermal expansion and contraction of the concret e the structural design of a concrete floor slab on grade is primarily controlled by the stresses caused by moving live loads and in some cases the stationary loads.
And design of residential slabs on ground brab report 33.
Continuous one way slab figure 1 shows a clear area of 12 m x 85 m for a hall construction in a school.
A ground oor slab is to be designed for a single storey supermarket measuring 60 m 36 m on plan as shown in fig.
431 piled floor design example.
C r ack control.
Anderson key factors to consider include type of slab construction and loading conditions industrial floor designs usually are based on one or more of the five design methods.
The recommendations derived from these and other studies vary from extremely light to extremely heavy.
This video shows you how to calculate the amount of concrete required to pour a concrete slab on ground with splayed edge beam and a rebated edge.
Stresses in floor slabs on grade resulting from vehicular loads a re a function.
437 piled floor deflexion check.
Summary Of Structural Requirements For Fire Design According
Concrete Slab Wikipedia
Underfloor Heating Underfloor Heating Pipes In Concrete Slab
Design Example Of A Six Storey Building Pdf Free Download
What Is A Hidden Beam Purpose Applications And Design
Earth Pressure Acting On Basement Walls
Design Example Eq26
Building Guidelines Drawings Section B Concrete Construction
Slab On Ground Design Workshop 1 2 Ceus
Concrete Slab Wikipedia
How To Choose A Floor Structure Homebuilding Renovating
Builder S Engineer Design Example 3 Reinforced Strip
Column Layout For A Residence Civil Engineering Civil
2 2 6 Ground Floor Create The Slab
Concrete Slab Floors Yourhome
Reinforced Concrete Design Examples
Concrete Slab On Grade Design Example Pictures To Pin On
Building On Reactive Soil Sites Build
B 7 1 Construction F1 Ground Floor Concrete Slab On Ground
Floor Wikipedia
Concrete Rebar Diagram Wiring Diagram Options
Concrete Slab Floor Construction Branz Renovate
Greenspec Housing Retrofit Ground Floor Insulation
What Is Slab Beam Column And Footing Construction
Five Storey Building Introduction To Structural Design
Greenspec Housing Retrofit Ground Floor Insulation
Project No 9
Topic Modern House Design 1 General Info Your Gr
Two Way Slab Reinforcement In Detail
Chapter 4 Foundations California Residential Code 2016
Concrete Slab Floors Yourhome
Structural Analysis And Design Of Residential Buildings
Eq26
Concrete Floor Requirements 2 Post And 4 Post Lifts Bendpak
Builder S Engineer February 2013
The Ph Guide To Insulating Foundations Passivehouseplus Ie
Ground Floor Slab Design Example Split Emseal Concrete
Concrete Slab Wikipedia
Chapter 4 Foundations California Residential Code 2016
Concrete Slab Floors Yourhome
Foundations For Difficult Sites Homebuilding Renovating
Concrete Foundation Three Types Of Concrete Foundations
Builder S Engineer Design Example Piled Ground Beams With
Floor Design 1
Applications Of Technology Ppt Download
Slab On Ground Design Workshop 1 2 Ceus
Concrete Industrial Ground Floor Design To Tr34 In Tekla
What Is Grade Slab And What Is The Difference Between Grade
Lift Slab Construction Wikipedia
Builder S Engineer Design Example Floating Slab
Rcd One Way Slab Design Design Of A One Way Rc Slab
Floating Column In Buildings How It Works Hanging
Concrete Slab Wikipedia
Byangabo Commercial Building
Reinforcement Detailing Of Reinforced Concrete Slabs
Structural Design Of A Typical American Wood Framed Single
Structural Analysis And Design Of Residential Buildings
Transfer Structures Design Example On 5 Storey Building
Live Loads For Different Buildings Floors And Structures
Concrete Slab Wikipedia
Design Of Residential Buildings Using Csc Orion Step By
Transfer Structures Design Example On 5 Storey Building
Floor Systems Steelconstruction Info
Raft Foundation An Overview Sciencedirect Topics
Slab On Ground Concrete Calculations
Ground Floor Slab Design Example Split Emseal Concrete
Reinforced Concrete Design
Builder S Engineer Design Example Nominal Crust Raft
Design Of Slabs On Grade Ppt Video Online Download
Concrete Industrial Ground Floor Slab Desig1 Strength Of
16 Different Types Of Slabs In Construction Where To Use
Construction And Glazing Model Detail
Building Guidelines Drawings Section B Concrete Construction
Slab On Ground U Value Calculation
Reinforced Concrete Design Examples
Doe Building Foundations Section 4 1
Concrete Slab Floors Yourhome
Structural Analysis And Design Of Residential Buildings
What Is Substructure And Superstructure In Building
Concrete Slab Floors Yourhome
Shear Wall Functions Loads Transfer Mechanism Design
Post Tensioned Pt Slabs
Slab On Ground Design Workshop 1 2 Ceus
Structural Design Of Foundations For The Home Inspector
Concrete Slab Floors Yourhome
Introduction To Beam And Block Floors Construction
Reinforced And Post Tensioned Concrete Slab Design Software
Rcc Slab Roof Design Example Engineering Feed Concrete
Concrete Ground Floor Slab Design Gurus Floor Rcc Roof
Limecrete Floor Limecrete Net
Reinforced And Post Tensioned Concrete Slab Design Software
Section Ground Floor Wall Juction Durisol
1 Pashto Steel Quantity Calculation For Slabs Example 1
Design Of Residential Buildings Using Csc Orion Step By
Janelle Structures
Structural Design Of Cantilever Slabs Solved Example
Solved Reinforced Concrete Design Class Project The Struc
Strip Foundation Detail Drawing Google Search House